当前位置:首页 > 公司新闻
NEWS

新闻资讯
公司新闻
行业动态
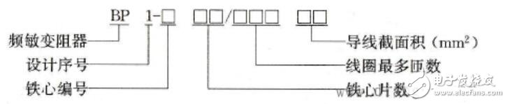
频敏变阻器命名规则

常用的频敏变阻器有BP1、BP2、BP3、BP4和BP6等系列。BP1系列的型号及含义如下:

频敏变阻器电气原理图_频敏变阻器作用

BP1系列频敏变阻器分为偶尔起动型(BP1 - 200、BP1 - 300型)和重复短时工作型(BP1- 400、BP1- 500型)两类。

电话: 13506671539 15968759000
© 乐清市申铂电器有限公司   浙ICP备20250621号-1   XML   网站地图   网站制作维护:传信网络

微信
咨询

扫一扫,加我为朋友
扫一扫,加我为朋友

服务
热线

13506671539

15968759000
服务热线